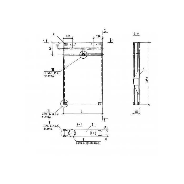
БВ 29.93.1 - это вентблок, предназначенный для использования в железобетонных конструкциях. Он обеспечивает надежную вентиляцию и защиту от влаги внутренних помещений. Благодаря своей конструкции и материалу изготовления, данный вентблок обладает высокой прочностью и долговечностью.









