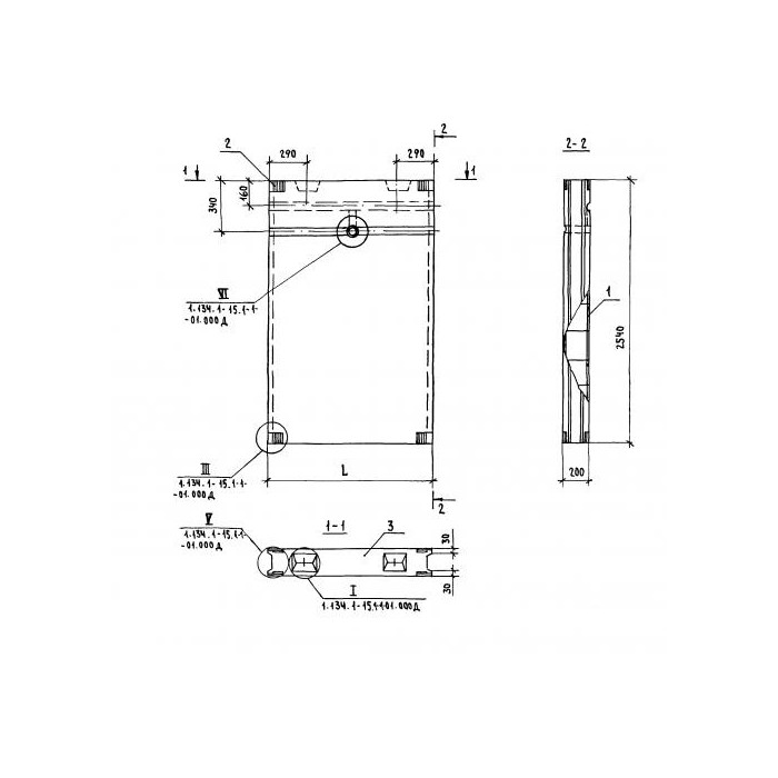
БВ 33-9-5-1 - это вентблок, предназначенный для использования в железобетонных конструкциях. Он обеспечивает надежную вентиляцию и защиту от влаги и перепадов температур. Благодаря своей конструкции и материалу изготовления, данный вентблок обладает высокой прочностью и долговечностью.









